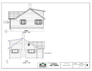
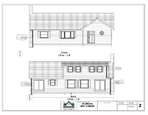
Ice Dam Heat Cables
Welcome to our Ice Dam Mitigation Design project, developed to address severe 14-inch ice dams impacting a home’s roof. Our team prepared a comprehensive roof plan, elevations, photos, and supporting details, ensuring accuracy and clarity for analysis.
These materials were used by the heat cable engineer to design a custom heating system that would prevent future ice buildup. By combining thorough documentation with collaborative design support, we helped create a tailored solution to safeguard the home against recurring winter damage.
